The Details
Project Start: September 2010
Project Completion: March 2011
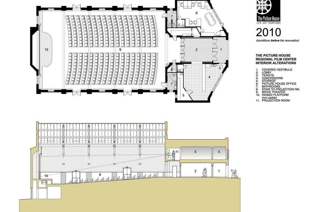
GTL was commissioned by The Pelham Picture House to execute major renovations to restore a 1921 movie theater opening a new chapter in its 91 year history. The Pelham Picture House was the focus of a capital campaign to transform the theater into a state-of-the-art film and education center. This community-based, mission-driven, nonprofit project was done in two phases. Phase one consisted of the historic renovation and preservation of the theater’s historic integrity which included a silent-era screen, a pit under the stage, an arched ceiling in the lobby along with windows and the main seating area. The addition of a new 98 seat theater and education center was completed in Phase II. These renovations and updates revitalized the theater bringing it into the 21st century and creating a focal point of the community.








